Rated Current 80A Directly
MID Certificated
High Accuracy Class C
35mm DIN Rail Mounted
Pulse Output
4 Modules 72mm Width
For IoT Energy Management, Factory, School
Solid Core
High Accuracy Class 0.5
IEC/EN61869-1;IEC/EN61869-2;CE
Horizontal square hole type
Application: Busbar,Cables. New construction projects
+86-18702106858 / +86-21-69156352
AKH-0.66-II is a square-aperture, through-type current transformer built for crowded switchboards. Its glass-fiber reinforced housing slips straight over 1-6 rectangular bars or bundled cables up to 260 mm wide, eliminating the need for dismantling bus-work during retrofits. Offered in ratios from 100/5 A to 6300/5 A and accuracy classes 0.2, 0.5 or 1, the core delivers 5 VA-30 VA burden capacity while keeping linearity within ±0.2 %. A 3 kV/1 min withstand and –30 °C to +70 °C rating let it ride out harsh motor-control centres, photovoltaic combiners or shipboard panels. Two M5 studs or DIN rail clips provide vibration-proof mounting in any orientation, and the 45 mm depth preserves precious cabinet space. CE-marked to IEC 61869-2, the transformer feeds meters, relays or PLCs with a clean 5 A signal, turning high primary currents into safe, measurable data without copper work or shutdown.
|
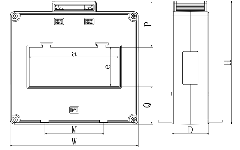
Size(mm)
Type |
Outline size |
Through size |
Mounting size |
Toler ance |
|||||||
|
W |
H |
D |
a |
e |
M |
N |
P |
Q |
Φ |
||
|
30II |
62 |
98 |
45 |
32 |
32 |
28 |
57.5 |
36.5 |
29.5 |
5 |
±1 |
|
40II |
79 |
103 |
45 |
43 |
31.5 |
48 |
57.5 |
43 |
28.5 |
5 |
|
|
50II |
87 |
113 |
45 |
52 |
32 |
30 |
57.5 |
45 |
36 |
5 |
|
|
60II |
102 |
125 |
45 |
61 |
33 |
42 |
57.5 |
50.5 |
41.5 |
5 |
|
|
60×50II |
102 |
142 |
45 |
62 |
51.5 |
42 |
57.5 |
51.5 |
39 |
5 |
|
|
80II |
117 |
119 |
45 |
82 |
32 |
60 |
57.5 |
48 |
39 |
5 |
|
|
80×50II |
120 |
141 |
45 |
82 |
52 |
60 |
57.5 |
49.5 |
39.5 |
5 |
|
|
100II |
145 |
125 |
45 |
103 |
35 |
80 |
57.5 |
49.5 |
40.5 |
5 |
|
|
100×50II |
145 |
155 |
50 |
103 |
55 |
80 |
70.5 |
57.5 |
42.5 |
5 |
±2 |
|
100×80II |
152 |
190 |
55 |
104 |
85 |
80 |
70.5 |
59.5 |
45.5 |
5 |
|
|
120×50II |
174 |
168 |
50 |
122 |
53 |
80 |
70.5 |
63 |
52 |
5 |
|
|
120×80II |
160 |
193 |
60 |
122 |
72 |
54 |
70.5 |
68 |
53 |
5 |
|
|
130×50II |
176 |
160 |
50 |
135 |
55 |
85 |
70.5 |
59.5 |
45.5 |
5 |
|
|
150×50II |
210 |
176 |
55 |
155 |
55 |
103 |
70.5 |
70.5 |
50.5 |
5 |
|
|
180×50II |
240 |
181 |
60 |
185 |
55 |
40/40/40 |
83 |
70.5 |
55.5 |
5 |
|
|
200×50II |
247 |
172 |
55 |
205 |
60 |
102 |
83 |
63 |
49 |
5 |
±3 |
|
220×50II |
280 |
190 |
60 |
225 |
55 |
65/55/65 |
83 |
73.5 |
61.5 |
5 |
|
|
260×50II |
320.5 |
191 |
60 |
264.5 |
54.5 |
65/55/65 |
83 |
75.5 |
61 |
5 |
|
|
170×100II |
227 |
230 |
60 |
172 |
105 |
103 |
83 |
70 |
55 |
5 |
|
|
260×100II |
308 |
226 |
63 |
265 |
103 |
181 |
83 |
69 |
54 |
5 |
|


Application Scenario

Founded in 2003, Acrel Co., Ltd.【Stock Code: 300286.SZ】 is a high-tech enterprise specializing in energy management solutions and electrical safety. Headquartered in Shanghai, Acrel offers innovative and sustainable solutions for microgrid energy efficiency and electrical safety. With over 600 patents and software copyrights, Acrel has deployed more than 28,000 system solutions globally, forming a comprehensive "cloud-edge-end" energy internet architecture.
Acrel Co., Ltd. is China Wholesale AKH-0.66/II AC Solid Core Current Transformer Manufacturers and AKH-0.66/II AC Solid Core Current Transformer Factory. Acrel's integrated product ecosystem spans from cloud platform software to end-user components, covering sectors such as power, renewable energy, data centers, smart buildings, transportation, and smart cities. These solutions enable intelligent, real-time energy management, enhancing energy security and reducing operational costs. We offer AKH-0.66/II AC Solid Core Current Transformer for sale.
The company's production facility, Jiangsu Acrel Electric Manufacturing Co., Ltd., adheres to strict quality standards and environmental guidelines, with advanced testing centers and a commitment to lead-free production processes. Acrel's team of over 500 engineers delivers cutting-edge energy efficiency systems and smart energy solutions.
With a strong domestic presence, Acrel is actively expanding internationally, supported by a global network of sales and technical teams and an e-commerce platform that ensures seamless service experiences worldwide. Acrel is proud to help businesses improve efficiency, reduce consumption, and achieve sustainability goals.
Together, we are building a smarter, greener future.
Authorized Patents
0+Number of Customers Served
0+Total Employees
0+Manufacturing Base
0m²Welcome to connectIn the context of the rapid development of the new energy industry, scenarios such as commercial and industrial energy storage, battery swapping stations, and household photovoltaic-storage systems have placed higher demands on the accuracy, compatibility, and intelligence of elect...
Read MoreIndustry Background and Application Importance Modern telecommunications networks have evolved into highly distributed, power-sensitive infrastructure systems. From core switching facilities and data centers to remote radio units, base stations, edge nodes, and customer premises equipment, telecom s...
Read MoreWith the rapid development of commercial real estate, power consumption management in shopping malls is gradually shifting from traditional manual operation to intelligent and data-driven management. In large shopping centers, the large number of tenants, diverse electricity usage patterns, high ene...
Read More